Продається квартира Иорданская ул. (Гавро Лайоша), 9б, Київ, Оболонський, Оболонь, м. Оболонь (№ 21-307-311)
Ціна: 125 000 $

Адреса: Иорданская ул. (Гавро Лайоша), 9б, Київ, Оболонський, Оболонь, м. Оболонь
Характеристики
| Ціна: | 125 000 $ |
|---|---|
| № об'єкта: | 21-307-311 |
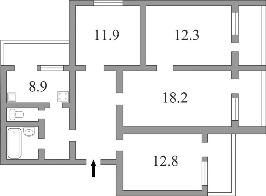
| Кімнат: | 4 |
| Поверх: | 2 / 16 ліфт |
| Площа: | 88 / 54 / 8.4 м2 |
| Санвузол: | 1 роздільний |
| Серія: | Т2 |
Опис
Просторная квартира в доме серии Т-4, функциональная планировка, 3 лоджии, обычное состояние, чистый ухоженный подьезд, два лифта, тихий зеленый двор, метро Оболонь 7 минут пешком, рядом все необходимое для комфортной жизни, школы, садики, супермаркеты, ТРЦ 'ДримТаун', озера. 3 лоджии. В двух комнатах мп окна. Квартира под ремонт. В доме консьерж. Во дворе детская площадка. Тихое место, далеко от дороги. Развитая инфраструктура - рядом школы, детсады, магазины. Хорошая транспортная развязка.




