Продаю 1 Комнатную квартиру Печерск метро Печерская (№ 212-479-062)
Ціна: 95 000 $

Адреса: Лабораторный пер., 6, Київ, Печерський, Печерськ, м. Палац Україна
Характеристики
| Ціна: | 95 000 $ |
|---|---|
| № об'єкта: | 212-479-062 |
| Кімнат: | 1 розд |
| Поверх: | 9 / 22 |
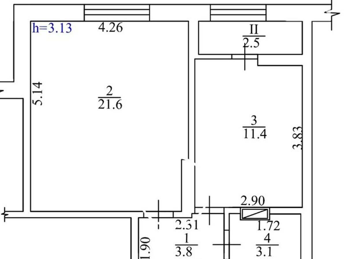
| Площа: | 46 / - / - м2 |
| Балкон: | відсутній |
| Серія: | 2006-2010 |
Опис
Продаю Одно Комнатную Квартиру, Печерск, выход к двум станциям метро: Печерская, Палац Украина; 46 кв.м., переулок Лабораторный, 6, Кирпичный Дом 2009 года, состояние :' от строителей' . Квартира расположена на 9-м этаже 22-х этажного дома. Из окон открывается отличный вид на город, . Подъезд в отличном состоянии. Все счетчики. Прекрасная инфраструктура, Звоните !!!





