Продаю 2-х комнатную видовую квартиру в ЖК Victory V, в центре Киева, пр. Победы 5В. Ближайшие станции метро: Вокзальная , Университет, Политехнический институт (№ 212-365-666)
Ціна: 190 000 $

Адреса: Победы просп., 5В, Київ, Шевченківський, КПІ (Шевченківський), м. Вокзальна
Характеристики
| Ціна: | 190 000 $ |
|---|---|
| № об'єкта: | 212-365-666 |
| Кімнат: | 2 розд |
| Поверх: | 28 / 34 ліфт |
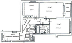
| Площа: | 71 / - / 11 м2 |
| Санвузол: | 2 роздільний + сумісний |
| Балкон: | балкон+лоджія |
| Серія: | 2011-2015 |
Опис
Квартира двусторонняя, расположена на 28-м этаже с панорамным красивым видом на центральную часть города. В каждой комнате и на кухне находится современная сплит - система для оптимального кондиционирования помещения. Кухня из крашенных мдф фасадов с фрезеровкой, есть посудомоечная машина, встроенный холодильник, духовка с функцией микроволновки и пароварки. Светодиодное освещение потолков, стен и ниш. Идеальная транспортная развязка и инфраструктура. Тип стен: Кирпичный; Отопление: Индивидуальное газовое; Меблирование: Да; Бытовая техника: Посудомоечная машина, Холодильник, Варочная панель, Духовой шкаф, Плита; Комфорт: Кондиционер, Ванна, Консъерж, Мебель на кухне, Панорамные окна, Охраняемая территория, Коммуникации: Асфальтированная дорога, Центральная канализация, Электричество, Центральный водопровод; Инфраструктура (до 500 метров): Кинотеатр, театр, Центр города, Аптека, Детский сад, Рынок, Ресторан, кафе, Школа, Магазин, киоск, Супермаркет, ТРЦ, Остановка транспорта;





