Продаётся 2х-комнатная квартира пр. Науки 55А в новом доме, рядом метро Демиевская, Дружбы народов, Лыбедская (№ 212-361-874)
Ціна: 91 000 $

Адреса: Науки просп., 55А, Київ, Голосіївський, Деміївка, м. Деміївська
Характеристики
| Ціна: | 91 000 $ |
|---|---|
| № об'єкта: | 212-361-874 |
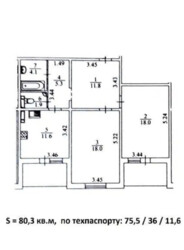
| Кімнат: | 2 розд |
| Поверх: | 18 / 25 ліфт |
| Площа: | 81 / - / 12 м2 |
| Санвузол: | 1 роздільний |
| Балкон: | балкон+лоджія |
| Серія: | 2011-2015 |
Опис
2х-ком. квартира в новом доме с отличным панорамным видом на Лавру и залив Днепра, Родину мать, Печерск. Рядом супермаркеты: школа, дет. сад. рынок, Ocean Plaza, парки. Отопление: Собственная котельная; Бытовая техника: Холодильник, Варочная панель, Стиральная машина; Мультимедиа: Скоростной интернет, Wi-Fi;Комфорт: Видеонаблюдение, Ванна, Консъерж, Инфраструктура (до 500 метров): Автовокзал, Детский сад, Рынок, Метро, Отделение почты, Магазин, киоск, Остановка транспорта;





